Domů - Všechny nemovitosti - Rekreační nemovitosti - MODERNÍ NOVOSTAVBA 300m OD MOŘE – POVLJANA, PAG
MODERNÍ NOVOSTAVBA 300m OD MOŘE – POVLJANA, PAG
MODERNÍ NOVOSTAVBA 300m OD MOŘE – POVLJANA, PAG
MODERNÍ NOVOSTAVBA 300m OD MOŘE – POVLJANA, PAG

MODERNÍ NOVOSTAVBA 300m OD MOŘE – POVLJANA, PAG

Povljana 77.09 m² 259 370 €
POPIS NEMOVITOSTI
ZÁKLADNÍ INFORMACE

Moderní novostavba v Povljaně – 300 m od moře

V klidné části Povljany, pouhých 300 metrů od moře a pláže, se staví moderní bytový dům s celkem 10 apartmány. Objekt je navržen podle současných stavebních standardů a představuje ideální příležitost pro celoroční bydlení, rekreaci nebo investici k turistickému pronájmu.

 

Hlavní výhody:

  • 300 m od moře
  • Parkovací místo zahrnuto v ceně
  • Podlahové vytápění v celém apartmánu
  • Klimatizace v každém pokoji
  • Kvalitní a moderní výstavba

Budova se skládá z přízemí, 1. patra a 2. patra, přičemž apartmány ve 2. patře jsou řešeny jako mezonetové s galerií. Ke každému apartmánu náleží vlastní parkovací místo.

 

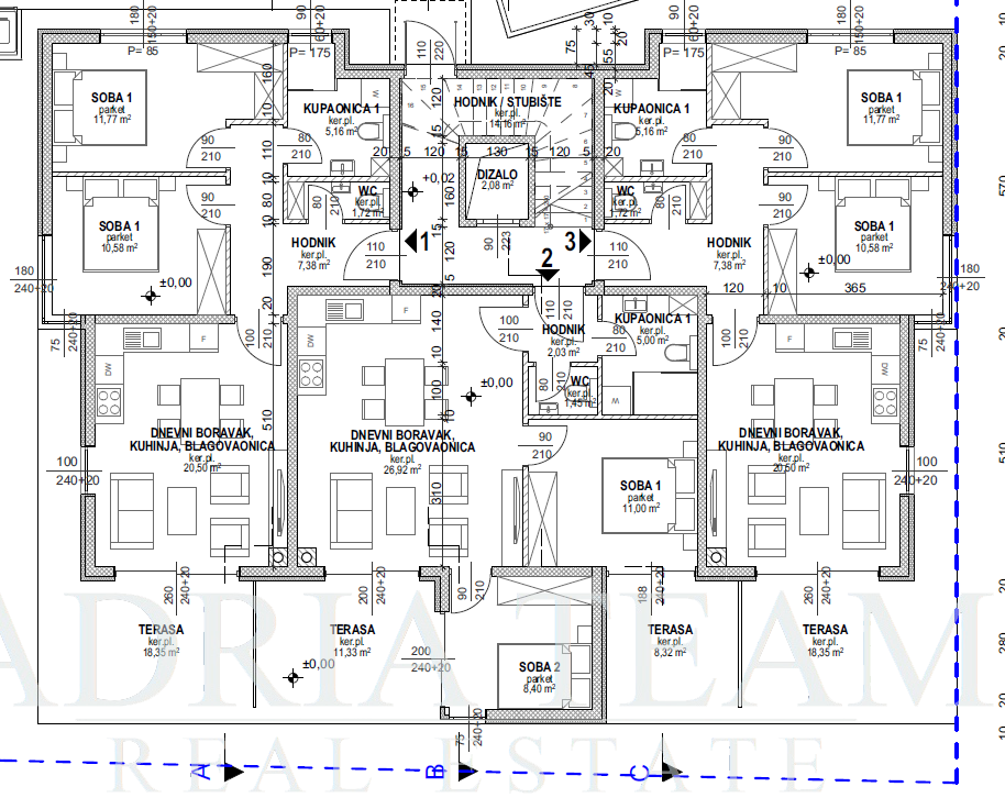
PŘÍZEMÍ

Apartmán 1 – levý

PRODÁNO

 

Apartmán 2 – střední

Celková plocha: 84,45 m²

Dispozice:

  • Vstupní chodba – 2,03 m²
  • Obývací pokoj s kuchyní a jídelnou – 26,92 m²
  • Ložnice – 11,00 m²
  • Ložnice – 8,40 m²
  • Koupelna – 5,00 m²
  • WC – 1,45 m²
  • Terasa – 11,33 m²
  • Terasa – 8,32 m²

Celková cena: 276.112 EUR

 

Apartmán 3 – pravý

Celková plocha: 81,46 m²

Dispozice:

  • Vstupní chodba – 7,38 m²
  • Obývací pokoj s kuchyní a jídelnou – 20,50 m²
  • Ložnice – 11,77 m²
  • Ložnice – 10,58 m²
  • Koupelna – 5,16 m²
  • WC – 1,72 m²
  • Krytá terasa – 18,35 m²

Celková cena: 267.455 EUR

 

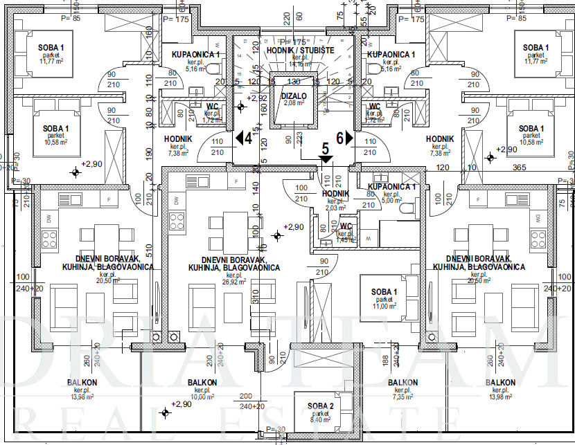
1. PATRO

Apartmán 4 – levý

Celková plocha: 77,09 m²

Dispozice:

  • Vstupní chodba – 7,38 m²
  • Obývací pokoj s kuchyní a jídelnou – 20,50 m²
  • Ložnice – 11,77 m²
  • Ložnice – 10,58 m²
  • Koupelna – 5,16 m²
  • WC – 1,72 m²
  • Balkon – 13,98 m²

Celková cena: 259.370 EUR

 

Apartmán 5 – střední

Celková plocha: 82,15 m²

Dispozice:

  • Vstupní chodba – 2,03 m²
  • Obývací pokoj s kuchyní a jídelnou – 26,92 m²
  • Ložnice – 11,00 m²
  • Ložnice – 8,40 m²
  • Koupelna – 5,00 m²
  • WC – 1,45 m²
  • Balkon – 10,00 m²
  • Balkon – 7,35 m²

Celková cena: 271.858 EUR

 

Apartmán 6 – pravý

Celková plocha: 77,09 m²

Dispozice:

  • Vstupní chodba – 7,38 m²
  • Obývací pokoj s kuchyní a jídelnou – 20,50 m²
  • Ložnice – 11,77 m²
  • Ložnice – 10,58 m²
  • Koupelna – 5,16 m²
  • WC – 1,72 m²
  • Balkon – 13,98 m²

Celková cena: 259.370 EUR

 

2. PATRO – Mezonetové apartmány s galerií

Prostorné a atraktivní mezonetové apartmány nabízejí vyšší komfort a funkčnost díky galerijnímu prostoru.

 

Apartmán 7 – levý

Celková plocha: 149,16 m²

Spodní podlaží:

  • Obývací pokoj a jídelna – 40,74 m²
  • Kuchyně – 3,92 m²
  • Ložnice – 12,13 m²
  • Ložnice – 10,78 m²
  • Koupelna – 3,33 m²
  • Koupelna – 3,22 m²
  • Chodba a schodiště
  • Balkon – 13,98 m²

Galerie:

  • Otevřený obytný prostor – 37,64 m²
  • Ložnice – 11,32 m²
  • Koupelna – 5,60 m²
  • Chodba – 6,50 m²

Celková cena: 526.029 EUR

 

Apartmán 8 – střední

Celková plocha: 145,18 m²

(Balkon – 10,00 m²)

Celková cena: 518.666 EUR

 

Apartmán 9 – střední

Celková plocha: 142,53 m²

(Balkon – 7,35 m²)

Celková cena: 513.764 EUR

 

Apartmán 10 – pravý

Celková plocha: 149,16 m²

(Balkon – 13,98 m²)

Celková cena: 526.029 EUR

Pro více informací nebo domluvení prohlídky nás neváhejte kontaktovat. Rádi Vám poskytneme všechny potřebné informace.

PŘEHLED
ZÁKLADNÍ INFORMACE
Kód objektu
26-031N
Prodejní cena
259 370 €
Lokalita
Povljana (23249)
Rozloha
77.09 m²
GALERIE

KONTAKTUJTE
NAŠEHO MAKLÉŘE

  MONIKA SUNARA

MONIKA
SUNARA

+420 608 952 962

info@adriateam.cz

KONTAKTNÍ FORMULÁŘ

KONTAKTUJTE
NAŠEHO MAKLÉŘE

Vaše zpráva byla úspěšně odeslána

Zprávu se nepodařilo odeslat. Zkuste to prosím znovu.

Všechna pole jsou povinná

DALŠÍ NEMOVITOSTI
Z LOKALITY Povljana
BYT V PŘÍZEMÍ SE ZAHRADOU – POVLJANA, PAG nemovitost na prodej

BYT V PŘÍZEMÍ SE ZAHRADOU – POVLJANA, PAG

Povljana 82.9 m² 265 280 €
NOVOSTAVBA – APARTMÁN V POVLJANĚ (OSTROV PAG) | 800 m OD MORA nemovitost na prodej

NOVOSTAVBA – APARTMÁN V POVLJANĚ (OSTROV PAG) | 800 m OD MORA

Povljana 49.79 m² 154 132 €
APARTMÁN – 1. PATRO – PRVNÍ ŘADA U MOŘE – VÝHLED NA MOŘE - POVLJANA, PAG nemovitost na prodej

APARTMÁN – 1. PATRO – PRVNÍ ŘADA U MOŘE – VÝHLED NA MOŘE - POVLJANA, PAG

Povljana 43.21 m² 220 000 €
APARTMÁN S4 S VÝTAHEM, NOVOSTAVBA - POVLJANA, PAG nemovitost na prodej

APARTMÁN S4 S VÝTAHEM, NOVOSTAVBA - POVLJANA, PAG

Povljana 73.04 m² 255 000 €
APARTMÁN V NOVOSTAVBĚ, VÝHLED NA MOŘE, ZAHRADA 240m2 - POVLJANA, PAG nemovitost na prodej

APARTMÁN V NOVOSTAVBĚ, VÝHLED NA MOŘE, ZAHRADA 240m2 - POVLJANA, PAG

Povljana 124 m² 249 000 €
APARTMÁN SE ZAHRADOU – NOVOSTAVBA – POVLJANA, OSTROV PAG nemovitost na prodej

APARTMÁN SE ZAHRADOU – NOVOSTAVBA – POVLJANA, OSTROV PAG

Povljana 84.34 m² 269 888 €
APARTMÁN S 3 LOŽNICEMI, 1. ŘADA U MOŘE, POVLJANA - PAG nemovitost na prodej

APARTMÁN S 3 LOŽNICEMI, 1. ŘADA U MOŘE, POVLJANA - PAG

Povljana 112 m² 450 000 €
LUXUSNÍ NOVOSTAVBA – DVOUPODELAŽNÍ APARTMÁN SE STŘEŠNÍ TERASOU A GARÁŽÍ – POVLJANA, PAG nemovitost na prodej

LUXUSNÍ NOVOSTAVBA – DVOUPODELAŽNÍ APARTMÁN SE STŘEŠNÍ TERASOU A GARÁŽÍ – POVLJANA, PAG

Povljana 184 m² 445 000 €
APARTMÁN PRVNÍ ŘADA U MOŘE, OTEVŘENÝ VÝHLED NA MOŘE – POVLJANA, PAG nemovitost na prodej

APARTMÁN PRVNÍ ŘADA U MOŘE, OTEVŘENÝ VÝHLED NA MOŘE – POVLJANA, PAG

Povljana 74.15 m² 370 000 €
1+KK BYT + NOVOSTAVBA – POVLJANA, PAG nemovitost na prodej

1+KK BYT + NOVOSTAVBA – POVLJANA, PAG

Povljana 46.01 m² 276 060 €
MEZONET 2+KK + GALERIE – NOVOSTAVBA – POVLJANA, PAG nemovitost na prodej

MEZONET 2+KK + GALERIE – NOVOSTAVBA – POVLJANA, PAG

Povljana 74.88 m² 434 304 €
DVOUPATROVÝ 2+KK + GALERIE – NOVOSTAVBA – POVLJANA, PAG nemovitost na prodej

DVOUPATROVÝ 2+KK + GALERIE – NOVOSTAVBA – POVLJANA, PAG

Povljana 75.15 m² 435 870 €
ATRATIVNÍ NOVOSTAVBA – 1POKOJOVÝ APARTMÁN S TERASOU A DVOREM – POVLJANA, PAG nemovitost na prodej

ATRATIVNÍ NOVOSTAVBA – 1POKOJOVÝ APARTMÁN S TERASOU A DVOREM – POVLJANA, PAG

Povljana 67 m² 193 500 €
ATRATIVNÍ NOVOSTAVBA – PROSTORNÝ 2POKOJOVÝ APARTMÁN S VELKOU TERASOU A ZAHRADOU – POVLJANA, PAG nemovitost na prodej

ATRATIVNÍ NOVOSTAVBA – PROSTORNÝ 2POKOJOVÝ APARTMÁN S VELKOU TERASOU A ZAHRADOU – POVLJANA, PAG

Povljana 179 m² 320 000 €
APARTMÁN V PŘÍZEMÍ SE ZAHRADOU A SOUKROMÝM BAZÉNEM, PRVNÍ ŘADA U MOŘE - POVLJANA nemovitost na prodej

APARTMÁN V PŘÍZEMÍ SE ZAHRADOU A SOUKROMÝM BAZÉNEM, PRVNÍ ŘADA U MOŘE - POVLJANA

Povljana 82.25 m² 700 000 €
DŮM – 7 APARTMÁNŮ – POVLJANA, OSTROV PAG nemovitost na prodej

DŮM – 7 APARTMÁNŮ – POVLJANA, OSTROV PAG

Povljana 340 m² 780 000 €
MEZONET 2+KK + GALERIE – NOVOSTAVBA – POVLJANA, PAG nemovitost na prodej

MEZONET 2+KK + GALERIE – NOVOSTAVBA – POVLJANA, PAG

Povljana 75.15 m² 435 870 €
APARTMÁN S5 V APARTMÁNOVÉM DOMĚ  V NOVOSTAVBĚ - POVLJANA, PAG nemovitost na prodej

APARTMÁN S5 V APARTMÁNOVÉM DOMĚ V NOVOSTAVBĚ - POVLJANA, PAG

Povljana 159 m² 315 000 €
KONTAKTUJTE NÁS JEŠTĚ DNES
ADRIA TEAM REAL ESTATE d.o.o.
Autorizovaný makléř v obchodu s nemovitostmi
Vaše zpráva byla úspěšně odeslána
Zprávu se nepodařilo odeslat. Zkuste to prosím znovu.

Všechna pole jsou povinná

© Všechna práva vyhrazena 2026 Adria Team | Podmínky používání a pravidla soukromí | Všeobecné smluvní podmínky

+420 608 952 962